
ENGLISH TEXT BELOW
Op een centrale woonlocatie in de wijk Gijzenrooi in het gewilde stadsdeel Stratum, bevindt zich deze instapklare vrijstaande woning met grote oprit, garage en een ruime, privacy biedende achtertuin op het zonnige zuidwesten.
De aan de zijkant uitgebouwde woning kenmerkt zich door een royale living met open keuken, een separate werkkamer/hobbyruimte en openslaande deuren naar de lommerrijke achtertuin. Daarnaast beschikt de woning over vier volwaardige slaapkamers, een recent gemoderniseerde badkamer, een ruime oprit met fietsenberging en een royale garage. De grote raampartijen zorgen voor veel daglicht en bieden een prachtig zicht op de groene omgeving.
De ligging is bijzonder gunstig: natuurgebieden zoals de Stratumse Heide en de Puttense Dreef bevinden zich op loopafstand, terwijl winkels voor de dagelijkse voorzieningen in de directe omgeving zijn gelegen. Het centrum van Eindhoven, Parktheater, diverse scholen en sportaccommodaties zijn eenvoudig per fiets bereikbaar. Tevens is de woning uitstekend gesitueerd ten opzichte van uitvalswegen, ziekenhuizen, TU/e en bedrijven zoals DAF Trucks, Philips en ASML.
Bijzonderheden:
- De woning is volledig geïsoleerd en beschikt over energielabel B.
- De woning beschikt over 9 zonnepanelen.
- De gehele begane grond is voorzien van een fraaie eikenhouten vloer.
- In 2024 zijn de verwarmingsketel en de mechanische ventilatie vernieuwd.
- De multifunctionele ruimte aan de zijkant van de woning is in 2009 aangebouwd.
- In 2021 zijn de badkamer en toilet vernieuwd. De keuken is van 2019.
- Het schilderwerk buiten is van 2023.
- De grote tuin op het zuidwesten biedt veel privacy.
- De woning ligt in Gijzenrooi in het gewilde stadsdeel Stratum dichtbij alle voorzieningen én de natuur.
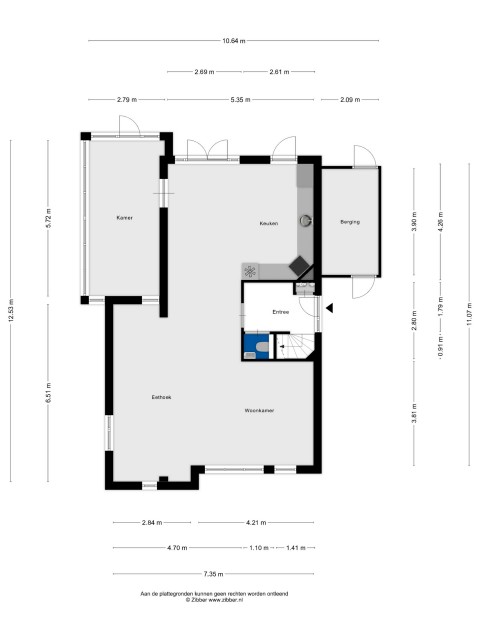
Begane grond:
De entree bevindt zich aan de zijkant van de woning en geeft toegang tot een ruime hal met houten vloer, meterkast en trapopgang naar de eerste verdieping. Vanuit de hal zijn de toiletruimte en de woonkamer bereikbaar.
De toiletruimte is in 2021 vernieuwd en uitgevoerd met een tegelvloer met houtlook en een fonteintje in een stijlvol wastafelmeubel.
De royale en lichte woon-/eetkamer is voorzien van een houten vloer, een open keuken en openslaande deuren naar de achtertuin. Er is de mogelijkheid voor het realiseren van een houtkachel of gaskachel (gasleiding is aanwezig). Dankzij de ruime opzet van de living is er volop plaats voor een royale zit- en eethoek. Grote raampartijen aan de voor-, zij- en achterzijde zorgen voor een prettige, natuurlijke lichtinval en bieden een prachtig zicht op het vele groen in de omgeving. Vanuit de eetkamer is een royale multifunctionele ruimte bereikbaar.
De open keuken is gelegen aan de achterzijde van de woning en biedt een fraai uitzicht op de lommerrijke tuin. Dankzij de royale afmetingen is er volop ruimte voor een extra eettafel. De keuken is uitgevoerd met een houten vloer en een moderne, lichte keukeninrichting in hoekopstelling. De keukeninrichting (2019) is voorzien van een composiet aanrechtblad met spoelbak, inductiekookplaat met afzuigkap, grote oven, vaatwasmachine, hoge apothekerskast en diverse kasten en lades. Vanuit de keuken biedt een deur toegang tot de achtertuin.
Via een fraaie glazen deur is vanuit de woon-/eetkamer de in 2019 gerealiseerde multifunctionele ruimte bereikbaar. Deze ruimte (ca. 16 m²) beschikt over een houten vloer en een deur naar de achtertuin. Dankzij de royale afmetingen is deze kamer uitstekend geschikt als kantoor-/werkruimte, speelkamer of hobbyruimte.
Eerste verdieping:
Via een vaste trap is de ruime overloop bereikbaar. De overloop is voorzien van een laminaatvloer en een raam in de zijgevel, wat zorgt voor prettig daglicht.
De zeer ruime hoofdslaapkamer is gelegen aan de voorzijde van de woning en beschikt over een laminaatvloer en openslaande deuren naar een royaal balkon op de zonzijde. Dankzij ramen aan drie zijden geniet deze slaapkamer van veel natuurlijke lichtinval.
Aan de achterzijde van de woning bevindt zich slaapkamer 2, uitgevoerd met een laminaatvloer en een dakkapel. In deze kamer zijn tevens de aansluitingen voor de wasapparatuur aanwezig.
Slaapkamer 3 is eveneens aan de achterzijde gelegen en is ruim van opzet. De kamer beschikt over een laminaatvloer, een raam in de zijgevel en een grote dakkapel. Deze zorgt voor extra licht en ruimte en biedt een prachtig zicht op de groene achtertuin.
Modern betegelde badkamer (2021) met mechanische ventilatie en designradiator. De badkamer is verder voorzien van een ruime inloopdouche met stort- en handdouche, ligbad, wandcloset en een modern badkamermeubel met dubbele wastafel.
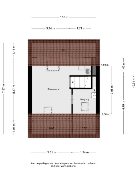
Tweede verdieping:
Via een vaste trap is deze zeer ruime vierde slaapkamer bereikbaar. De kamer is voorzien van een laminaatvloer en drie grote dakramen, wat zorgt voor veel lichtinval. Daarnaast beschikt de slaapkamer over een aparte hoek met wastafel en volop bergruimte achter de knieschotten. Ook is boven de trap nog een extra bergruimte gecreëerd. Vanuit de slaapkamer is de ruime berging toegankelijk.
De royale berging biedt plaats aan de opstelling van de CV-ketel (Remeha, 2024), de unit van de mechanische ventilatie en de inverter voor de zonnepanelen. Ook bevindt zich hier een aansluiting voor de waspparatuur.
Oprit & garage:
De royale oprit aan de zijkant van de woning biedt parkeergelegenheid voor meerdere auto’s. Op de oprit bevindt zich een ruime houten berging met elektra, ideaal voor het stallen van fietsen. Via de oprit is tevens de entree van de woning bereikbaar. Een poort biedt toegang tot de achtertuin. Aan het einde van de oprit bevindt zich de garage.
De ruime garage van ca.17 m² is voorzien van elektra en biedt volop bergruimte. De halfvrijstaande garage is bereikbaar via een roldeur aan de voorzijde en een loopdeur aan de tuinzijde.
Tuin:
De royale achtertuin is gelegen op het zonnige zuidwesten en biedt veel privacy. De tuin is verrassend ruim en biedt diverse relaxplekken in zowel de zon als schaduw. De lommerrijke tuin beschikt verder over een zonneterras voorzien van elektrisch bedienbare zonneluifel, wateraansluiting, elektrapunt, een groot gazon, volwassen bomen en een gevarieerde beplanting.
Omgeving:
De woning is centraal gelegen in de groene wijk Gijzenrooi, in het geliefde stadsdeel Stratum. Op loopafstand bevinden zich de uitgestrekte natuurgebieden ‘Riel’ en ‘Stratumse Heide’. Direct achter de woning ligt een speeltuintje. In de nabije omgeving zijn scholen, sportaccommodaties, openbaar vervoer en diverse winkels voor de dagelijkse boodschappen aanwezig. De woning ligt in de technologieregio Brainport Eindhoven en is zeer gunstig gesitueerd ten opzichte van het levendige stadscentrum van Eindhoven, Parktheater, het Centraal Station, de uitvalswegen, ziekenhuizen en TU/e. Tevens bevinden internationale bedrijven zoals ASML, de High Tech Campus, Philips en DAF Trucks zich op korte afstand.
ENGLISH VERSION:
Located in a central residential area in the Gijzenrooi neighborhood, within the highly sought-after Stratum district, this move-in-ready detached home offers a large driveway, garage, and a spacious, private rear garden facing the sunny southwest.
The side extension of the property results in a generous living area with an open kitchen, a separate home office/hobby room, and French doors opening onto the lush rear garden. In addition, the home features four full-sized bedrooms, a recently modernized bathroom, a spacious driveway with bicycle storage, and a generous garage. Large windows throughout ensure abundant natural light and provide beautiful views of the surrounding greenery.
The location is particularly favorable: nature areas such as the Stratumse Heide and Puttense Dreef are within walking distance, while shops for daily necessities are nearby. Eindhoven city center, the Parktheater, various schools, and sports facilities are easily accessible by bicycle. The property is also conveniently located near major roads, hospitals, Eindhoven University of Technology (TU/e), and companies such as DAF Trucks, Philips, and ASML.
Key features:
- Fully insulated property with energy label B
- Equipped with 9 solar panels
- Entire ground floor features a beautiful oak wooden floor
- Central heating boiler and mechanical ventilation renewed in 2024
- Multifunctional side extension added in 2009
- Bathroom and toilet renovated in 2021; kitchen installed in 2019
- Exterior painting completed in 2023
- Large southwest-facing garden offering a high degree of privacy
- Located in Gijzenrooi, Stratum: close to amenities and nature
Ground floor:
The entrance is located on the side of the house and leads into a spacious hallway with a wooden floor, meter cupboard, and staircase to the first floor. From the hallway, the toilet and living room are accessible.
The toilet was renovated in 2021 and features wood-look floor tiles and a washbasin set in a stylish vanity unit.
The spacious and bright living/dining room features a wooden floor, an open kitchen, and French doors opening onto the rear garden. There is the option to install a wood-burning or gas fireplace (gas connection available). The generous layout allows ample space for both a comfortable seating area and a dining area. Large windows at the front, side, and rear provide pleasant natural light and offer lovely views of the surrounding greenery. From the dining area, a large multifunctional room can be accessed.
The open kitchen is located at the rear of the house and offers attractive views of the leafy garden. Thanks to its generous dimensions, there is ample space for an additional dining table. The kitchen features a wooden floor and a modern, light-colored corner layout. Installed in 2019, it is equipped with a composite worktop with sink, induction cooktop with extractor hood, large oven, dishwasher, tall pantry cabinet, and various cupboards and drawers. A door from the kitchen provides access to the rear garden.
Through an elegant glass door, the multifunctional room (created in 2019) is accessible from the living/dining room. This space (approx. 16 m²) features a wooden floor and a door to the garden. Thanks to its size, it is ideally suited as a home office, playroom, or hobby room.
First floor:
A fixed staircase leads to the spacious landing, which features laminate flooring and a window in the side façade, providing pleasant daylight.
The very spacious master bedroom is located at the front of the house and features laminate flooring and French doors opening onto a generous sun-facing balcony. With windows on three sides, this bedroom enjoys abundant natural light.
Bedroom 2 is located at the rear of the house and features laminate flooring and a dormer window. Connections for laundry appliances are also located in this room.
Bedroom 3 is also located at the rear and is generously sized. It features laminate flooring, a side window, and a large dormer window, providing extra light and space as well as lovely views of the green rear garden.
The modern tiled bathroom (2021) is equipped with mechanical ventilation and a designer radiator. It further includes a spacious walk-in shower with rain and hand shower, bathtub, wall-hung toilet, and a modern vanity unit with double washbasin.
Second floor:
This very spacious bedroom is accessible via a fixed staircase. The room features laminate flooring and three large roof windows, providing plenty of natural light. Additionally, the bedroom includes a separate corner with a washbasin and ample storage space behind the knee walls. An extra storage area has also been created above the staircase. From the bedroom, the spacious storage room is accessible.
The large storage room houses the central heating boiler (Remeha, 2024), the mechanical ventilation unit, and the inverter for the solar panels. A connection for laundry appliances is also located here.
Driveway & garage:
The spacious driveway along the side of the house offers parking for multiple cars. On the driveway, there is a large wooden storage shed with electricity, ideal for bicycle storage. The entrance to the house is also accessible via the driveway, and a gate provides access to the rear garden. The garage is located at the end of the driveway.
The spacious garage (approx. 17 m²) is equipped with electricity and offers ample storage space. The semi-detached garage is accessible via a roller door at the front and a pedestrian door on the garden side.
Garden:
The generous rear garden is southwest-facing and offers a high level of privacy. The garden is surprisingly spacious and provides multiple seating areas in both sun and shade. The lush garden features a sun terrace with electrically operated awning, water connection, power outlet, large lawn, mature trees, and varied planting.
Surroundings:
The property is centrally located in the green Gijzenrooi neighborhood, within the popular Stratum district. The expansive nature areas of “Riel” and “Stratumse Heide” are within walking distance. A small playground is located directly behind the house. Schools, sports facilities, public transport, and various shops for daily groceries are nearby. The home is located in the Brainport Eindhoven technology region and enjoys a very convenient position in relation to Eindhoven city center, the Parktheater, Central Station, arterial roads, hospitals, and Eindhoven University of Technology (TU/e). International companies such as ASML, the High Tech Campus, Philips, and DAF Trucks are also located nearby.
* Deze informatie is door ons met de nodige zorgvuldigheid samengesteld. Onzerzijds wordt echter geen enkele aansprakelijkheid aanvaard voor enige onvolledigheid, onjuistheid of anderszins, dan wel de gevolgen daarvan. Alle opgegeven maten en oppervlakten zijn indicatief. Van toepassing zijn de NVM voorwaarden.














































