
ENGLISH TEXT BELOW
Welkom bij Imkerhei 37!
Ruime en werkelijk keurig onderhouden twee-onder-een-kapwoning met oprit en garage.
Deze energiezuinige woning (energielabel A) biedt alles wat je zoekt: een tuingerichte woon-/eetkamer, drie ruime slaapkamers, een royale badkamer, een luxe keuken en een zonnige tuin op het zuiden.
De woning is ideaal gelegen in de kindvriendelijke en groene wijk “Heivelden”, met scholen, winkels, speelgelegenheden en uitvalswegen binnen handbereik.
Bijzonderheden:
- De woning is volledig geïsoleerd.
- Energielabel A.
- De woning beschikt over 8 zonnepanelen.
- In de woon-/eetkamer en de keuken is vloerverwarming aanwezig.
- In 2023 is het buitenschilderwerk van ramen, deuren en kozijnen uitgevoerd.
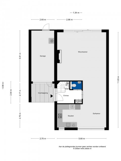
Begane grond:
Je komt binnen via de overdekte entree met verlichting. De hal biedt toegang tot de royale living, een trap naar de eerste verdieping en de licht betegelde toiletruimte met wandcloset en fonteintje.
De L-vormige woonkamer (circa 47 m²) is modern en licht afgewerkt en voorzien van een sfeervolle open haard die zorgt voor extra warmte en gezelligheid. Dankzij de schuifpui aan de achterzijde stap je zo de zonnige tuin in.
De keuken is gesitueerd aan de voorzijde en beschikt over een U-vormige opstelling met een stijlvol antraciet granieten werkblad en
volop kastruimte. Uiteraard is alle benodigde apparatuur aanwezig, waaronder een vaatwasmachine , koelkast, combi-oven, 5-pits gasfornuis met wokbrander, RVS afzuigkap, spoelbak én ingebouwde verlichting.
De gehele begane grond is voorzien van een lichte granieten vloer met vloerverwarming en strak afgewerkte wanden en plafonds.
Eerste verdieping:
Vanuit de overloop is er toegang tot drie slaapkamers en de badkamer. Ook is er een luik met een vlizotrap waarmee de bergzolder
te bereiken is.
De ruime slaapkamer 1 aan de voorzijde is voorzien van een moderne dakkapel en een praktische ingebouwde kastenwand met
schuifdeuren.
De tweede, ruime slaapkamer 2, ook aan de voorzijde, beschikt over een groot Velux dakvenster.
De derde, ruime slaapkamer 3 aan de achterzijde is eveneens voorzien van een groot Velux dakvenster.
De modern betegelde badkamer is ruim opgezet en uitgerust met een ligbad, separate douche, twee wastafels, tweede toilet en
aansluiting voor wasmachine en droger. Ook hier zorgt een Velux dakraam voor een prettige lichtinval.
De gehele eerste verdieping (m.u.v. de badkamer) is voorzien van een nette laminaatvloer en strak spuitwerk op wanden en
plafonds.
Tweede verdieping:
Via vlizotrap te bereiken ruime, praktische bergzolder met groot Velux dakvenster, laminaatvloer, opstelling cv-combiketel,
mechanische ventilatie unit en bergruimte achter knieschotten.
Tuin:
De zonnige achtertuin is bijzonder sfeervol dankzij de fraai aangelegde borders met diverse beplanting. Een mooie mix van bloemen,
vaste planten, groenblijvende struiken en enkele bomen zorgen het hele jaar door voor een fijne tuin om in te verblijven. Dankzij de
ligging op het zuiden geniet je hier volop van de zon, terwijl de elektrische zonwering voor de nodige schaduw zorgt op warme
dagen.
Daarnaast is de tuin voorzien van tuinverlichting en elektrapunten.
Omgeving:
De woning heeft een rustige ligging in een straat met uitsluitend bestemmingsverkeer en veel groen, alsmede vele speelveldjes voor
de kinderen in de buurt. Allerlei voorzieningen zijn gelegen in de nabije omgeving, zo ligt Winkelcentrum Heivelden op korte afstand
met o.a. een supermarkt, drogist, slijterij, bakker, kapper en een cafetaria. Daarnaast zijn er basisscholen, een middelbare school en
diverse sportgelegenheden, een 18 holes golfbaan, dierenpark, bibliotheek, overdekt en een openlucht zwembad en een bioscoop
in de omgeving.
Deze woonlocatie biedt tevens een goede uitvalsbasis met snelwegen naar Eindhoven, Tilburg en ’s-Hertogenbosch. Best beschikt
verder over een station en ligt op slechts enkele kilometers van Eindhoven Airport.
Algemene informatie:
Bouwjaar: ca. 2000
Perceeloppervlakte: 229 m2
Woonoppervlakte: ca. 114 m2
Inhoud woning: ca. 495 m3
* Deze informatie is door ons met de nodige zorgvuldigheid samengesteld. Onzerzijds wordt echter geen enkele aansprakelijkheid aanvaard voor enige onvolledigheid, onjuistheid of anderszins, dan wel de gevolgen daarvan. Alle opgegeven maten en oppervlakten zijn indicatief. Van toepassing zijn de NVM voorwaarden.
Welcome to Imkerhei 37!
Spacious and impeccably maintained semi-detached home with driveway and garage.
This energy-efficient house (energy label A) has everything you're looking for: a garden-facing living/dining room, three spacious bedrooms, a generous bathroom, a luxury kitchen, and a sunny south-facing garden.
The property is ideally located in the child-friendly and green neighborhood "Heivelden", with schools, shops, playgrounds, and major roads nearby.
Key features:
- The property is fully insulated
- Energy label A
- Equipped with 8 solar panels
- Underfloor heating in the living/dining room and kitchen
- Exterior painting of windows, doors, and frames completed in 2023
Ground floor:
You enter through the covered entrance with lighting. The hallway provides access to the spacious living room, a staircase to the first floor, and a light-tiled toilet with wall-mounted toilet and hand basin.
The L-shaped living room (approx. 47 m²) is modern and bright, featuring a cozy open fireplace that adds warmth and ambiance. A sliding door at the rear opens directly to the sunny garden.
The kitchen is located at the front and features a U-shaped layout with a stylish anthracite granite countertop and ample cabinet space. Naturally, all essential appliances are included: a dishwasher, refrigerator, combi-oven, 5-burner gas hob with wok burner, stainless steel extractor hood, sink, and built-in lighting.
The entire ground floor features a light granite floor with underfloor heating and neatly finished walls and ceilings.
First floor:
From the landing, there is access to three bedrooms and the bathroom. There's also a hatch with a loft ladder leading to the attic storage space.
The spacious front-facing bedroom 1 has a modern dormer and a practical built-in wardrobe with sliding doors.
The second spacious front-facing bedroom 2 features a large Velux skylight.
The third spacious bedroom 3 at the rear also includes a large Velux skylight.
The modern, fully tiled bathroom is generously sized and equipped with a bathtub, separate shower, double sinks, a second toilet, and connections for a washing machine and dryer. A Velux window provides pleasant natural light.
The entire first floor (excluding the bathroom) has a neat laminate floor and smooth-finished walls and ceilings.
Second floor:
Accessible via loft ladder, this spacious, practical attic includes a large Velux skylight, laminate flooring, central heating boiler, mechanical ventilation unit, and storage space behind the knee walls.
Garden:
The sunny backyard is especially charming with beautifully landscaped borders and a variety of plants. A lovely mix of flowers, perennials, evergreen shrubs, and a few trees ensure this garden is enjoyable year-round. Facing south, it gets plenty of sunlight, while the electric awning offers shade on hot days.
The garden also features outdoor lighting and electrical outlets.
Surroundings:
The home is situated on a quiet street with only local traffic and plenty of greenery, as well as several nearby playgrounds for children. A variety of amenities are close by, with the Heivelden Shopping Center just a short distance away, offering a supermarket, pharmacy, liquor store, bakery, hairdresser, and a snack bar. Additionally, there are primary and secondary schools, various sports facilities, an 18-hole golf course, zoo, library, indoor and outdoor swimming pools, and a cinema in the area.
This residential location also offers excellent access to highways leading to Eindhoven, Tilburg, and ’s-Hertogenbosch. Best also has its own train station and is located just a few kilometers from Eindhoven Airport.
General information:
Year of construction: approx. 2000
Plot size: 229 m²
Living area: approx. 114 m²
House volume: approx. 495 m³
* Deze informatie is door ons met de nodige zorgvuldigheid samengesteld. Onzerzijds wordt echter geen enkele aansprakelijkheid aanvaard voor enige onvolledigheid, onjuistheid of anderszins, dan wel de gevolgen daarvan. Alle opgegeven maten en oppervlakten zijn indicatief. Van toepassing zijn de NVM voorwaarden.






































